物件基本情報
販売価格 3,150万円:北野一条1-8番5号
販売価格 3,190万円:北野一条1-8番4号
販売価格 3,190万円:北野一条1-8番4号
|
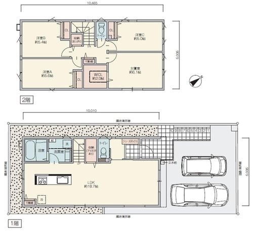
間取り
|
4LDK
|
建物面積
|
99.07㎡・100.31㎡
(29.96坪・30.34坪) |
|
築年月
|
2023年11月完成
|
土地面積
|
112.86㎡・112.87㎡
(34.13坪・34.14坪) |
|
所在地
|
北海道札幌市清田区北野一条1-8番5号・8番4号
|
||
|
私道負担・道路
|
道路幅:8m、アスファルト舗装、公道 北東 幅員8m
私道負担無 |
構造
|
木造2階建
(2×4工法) |
POINT
湯けむりの丘「つきさむ温泉」まで徒歩5分!
未入居「戸建」3100万円台!
未入居「戸建」3100万円台!
Life information
【教育】
幼稚園・保育園複数
札幌市立北野小学校
札幌市立北野中学校
【ショッピング】
スーパーアークス北野店
ツルハドラッグ月寒東2条店
DCM北野通店
ヤマダデンキTecc LIFE SELECT清田店
物件概要
|
物件種別
|
新築戸建
|
|
構造
|
木造
|
|
総戸数
|
2戸
|
|
築年月/完成時期
|
2023年11月
|
|
土地面積
|
112.86㎡・112.87㎡(34.13坪・34.14坪)(登記)
|
|
建物面積
|
99.07㎡2・100.31㎡(29.96坪・30.34坪)(登記)
|
|
建ぺい率・容積率
|
建ペい率:60%、容積率:200%
|
|
駐車場
|
敷地内
|
|
施工会社
|
株式会社 飯田工務店
|
|
土地権利
|
所有権
|
|
用途地域
|
1種中高
|
|
公共設備
|
電気 / 水道公営 / 都市ガス
|
|
引渡時期
|
即引渡可
|